Le jumbo de boulonnage hydraulique HT92-D (hauteur minimale de section : 2,8 m) est conçu pour des opérations de boulonnage efficaces dans les tunnels à gabarit réduit et les mines métalliques souterraines. Son mécanisme d’avance spécialement développé permet un boulonnage fiable dans des galeries aussi étroites que 2,8 m × 2,8 m.
Équipé d’un système de forage électro-hydraulique avancé et d’un dispositif anti-coincement, le jumbo de boulonnage hydraulique offre une vitesse de forage élevée, une excellente efficacité et une performance stable. Sa conception compacte et très maniable garantit une exploitation fluide en espaces confinés, tout en améliorant les conditions de travail et la qualité globale des opérations de soutènement.
| Jumbo de forage hydraulique | Section de galerie adaptée | 2800×2800-3500×3500mm |
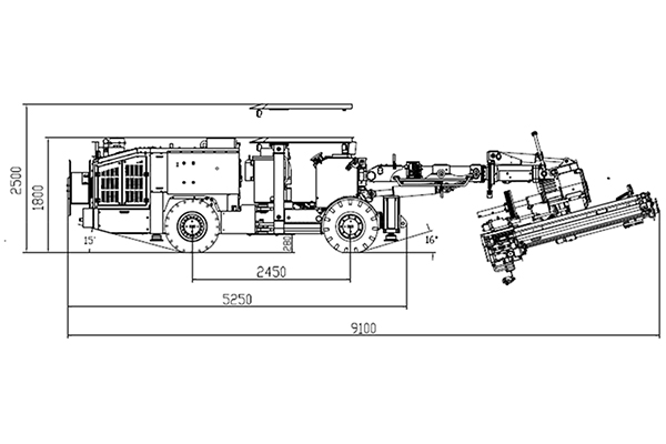
| Longueur | 9100mm | |
| Largeur | 1500mm | |
| Hauteur (toit abaissé) | 1800mm | |
| Hauteur (toit relevé) | 2500mm | |
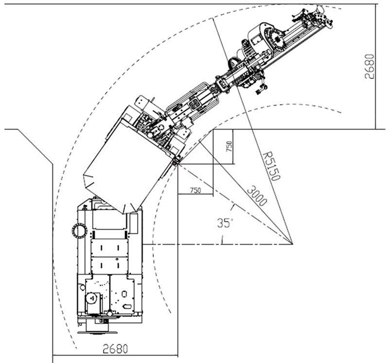
| GYTM412LD | Rayon de braquage minimal | Inner 3000mm / outer 5150mm |
| Aptitude en pente | 14° | |
| Vitesse de déplacement | 3.8km/h | |
| Poids total | 12000kg | |
| Garde au sol | 280mm | |
| Marteau perforateur hydraulique | odèle | RC1200 |
| Puissance de percussion | 14kW | |
| Fréquence de percussion | 100Hz | |
| Pression d’impact maximale | 180bar | |
| Système de rotation | Rotation indépendante | |
| Emmanchement (shank) | R32 | |
| Diamètre de perçage | 32-45mm | |
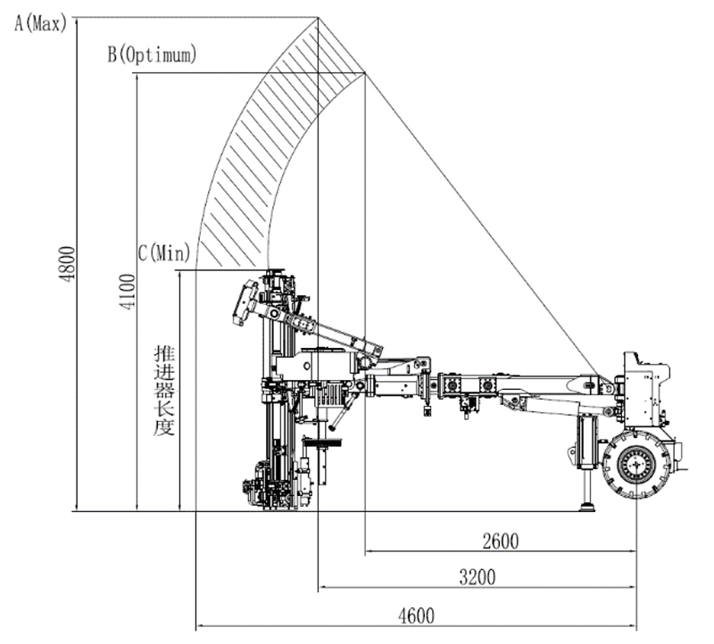
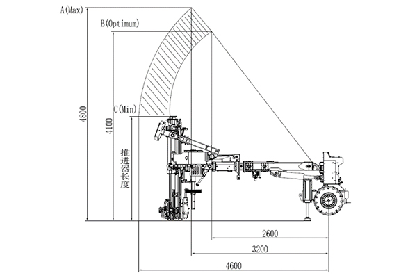
| Système d’avance | Longueur d’avance | 2780mm |
| Longueur de boulon Split Set | 1800mm | |
| Pression de travail | ≤10MPa | |
| Force d’avance | 10kN | |
| Angle d’inclinaison du système d’avance | +80°-25° | |
| Angle de rotation du système d’avance | ±180° | |
| Course de compensation du système d’avance | 480mm | |
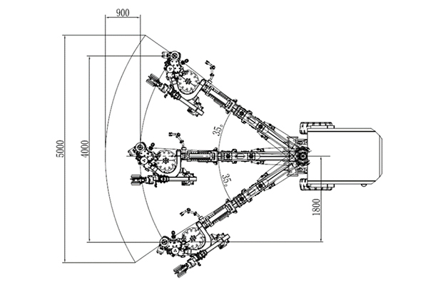
| Bras de forage | Angle d’inclinaison | +50° / -30° |
| Extension du bras | 900mm | |
| Angle de balayage | ±35° | |
| Châssis | Moteur | Moteur diesel Cummins Stage IV |
| Puissance nominale (2400 tr/min) | 54kW | |
| Couple | 320N.m | |
| Oscillation de l’essieu arrière | 7° | |
| Angle de braquage | ±35° | |
| Système hydraulique | Cylindrée de percussion | 100cc/32cc |
| Capacité maximale du réservoir d’huile | 100L | |
| Finesse de filtration | 10μm | |
| Capteur de niveau d’huile : équipé | ||
| Refroidisseur d’eau : équipé | ||
Huatai est une entreprise chinoise spécialisée dans la conception et la production en série d'engins de forage de roche. Depuis sa création en 2000, l'entreprise s'est engagée à fabriquer des produits de pointe et à offrir des services de la plus haute qualité à de nombreuses entreprises opérant dans les secteurs miniers, métallurgiques et de l'ingénierie des fondations.
Au cours de 20 ans d'innovation et de développement constants dans l'industrie minière souterraine et du forage de roche, Huatai a réalisé une auto-transcendance continue et comblé plusieurs lacunes sur le marché intérieur. Aujourd'hui, notre gamme de produits comprend plus de 30 types de machines de forage de roche pour mines, réparties en trois catégories : engins pour mines souterraines, engins pour mines de charbon et foreuses jumbo pour puits. Ces années de croissance et d'amélioration constantes ont permis de réaliser des progrès notables dans l'industrie nationale des machines de forage de roche, augmentant la sécurité, l'efficacité et la rentabilité des projets d'ingénierie minière souterraine et de construction de tunnels.
Le jumbo de forage de puits GYSJZ est une machine de forage spécialisée et haute performance conçue pour répondre aux exigences des excavations de puits verticaux profonds en roche dure. Cet engin de forage est alimenté par un moteur robuste de 132 kW et équipé de trois perforateurs hydrauliques robustes, lui permettant de gérer des diamètres de forage allant de 4 à 6 mètres.
En savoir plus +
Le jumbo de forage de puits YSJZ est un engin de forage spécialement conçu pour la construction de puits verticaux dans les mines de minerai de fer et de métaux non ferreux. Ce jumbo de puits constitue une excellente alternative pour les projets miniers et de construction souterraine où d'autres méthodes de forage ne peuvent être adoptées en raison de leurs limites techniques ou économiques.
En savoir plus +
La foreuse de puits verticale de la série SJZ est un engin spécial conçu pour le forage de trous de mine dans la construction de puits verticaux. Elle convient à une large gamme de diamètres de puits et se distingue par une opération flexible, un positionnement précis et une sécurité fiable.
En savoir plus +
Conçue spécifiquement pour les formations rocheuses de dureté moyenne, la foreuse hydraulique RC600 assure un forage puissant et précis dans un large éventail d’applications exigeantes. Sa conception robuste et ses fonctionnalités polyvalentes en font le choix idéal pour Le forage de soutien dans les mines souterraines, l’installation de boulons d’ancrage, la construction routière et de ponts, et les projets de bâtiment complexes.
En savoir plus +